

NOVITA' 2026!
La tua casa ovunque tu voglia!
Gataway vuol dire "fuga", è la soluzione per chi vuole spostarsi in comodità o dispone di terreno senza permessi edilizi. Infatti la casa mobile omologata per il trasporto è l'unica soluzione per posizionare una soluzione abitativa su qualunque terreno*, potendo così costruire un rifugio realmente immerso nella natura più incontaminata.
Ideale per chi desidera un rifugio personale o per ampliare l'offerta turistica in luoghi dove non vi sono concessioni o sono presenti restrizioni edilizie.
*legislazione nazionale italiana soggetta a limiti temporali, verifica le norme comunali prima dell'installazione.


INTERAMENTE FATTI A MANO IN ITALIA

10 ANNI DI GARANZIA SULLA STRUTTURA 2 ANNI DI GARANZIA SUGLI ACCESSORI

CERTIFICAZIONI IMPIANTISTICA

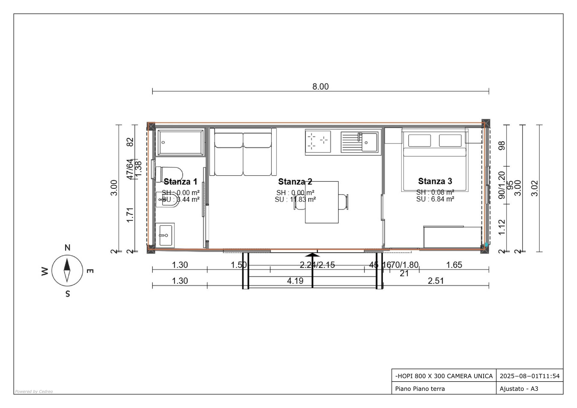
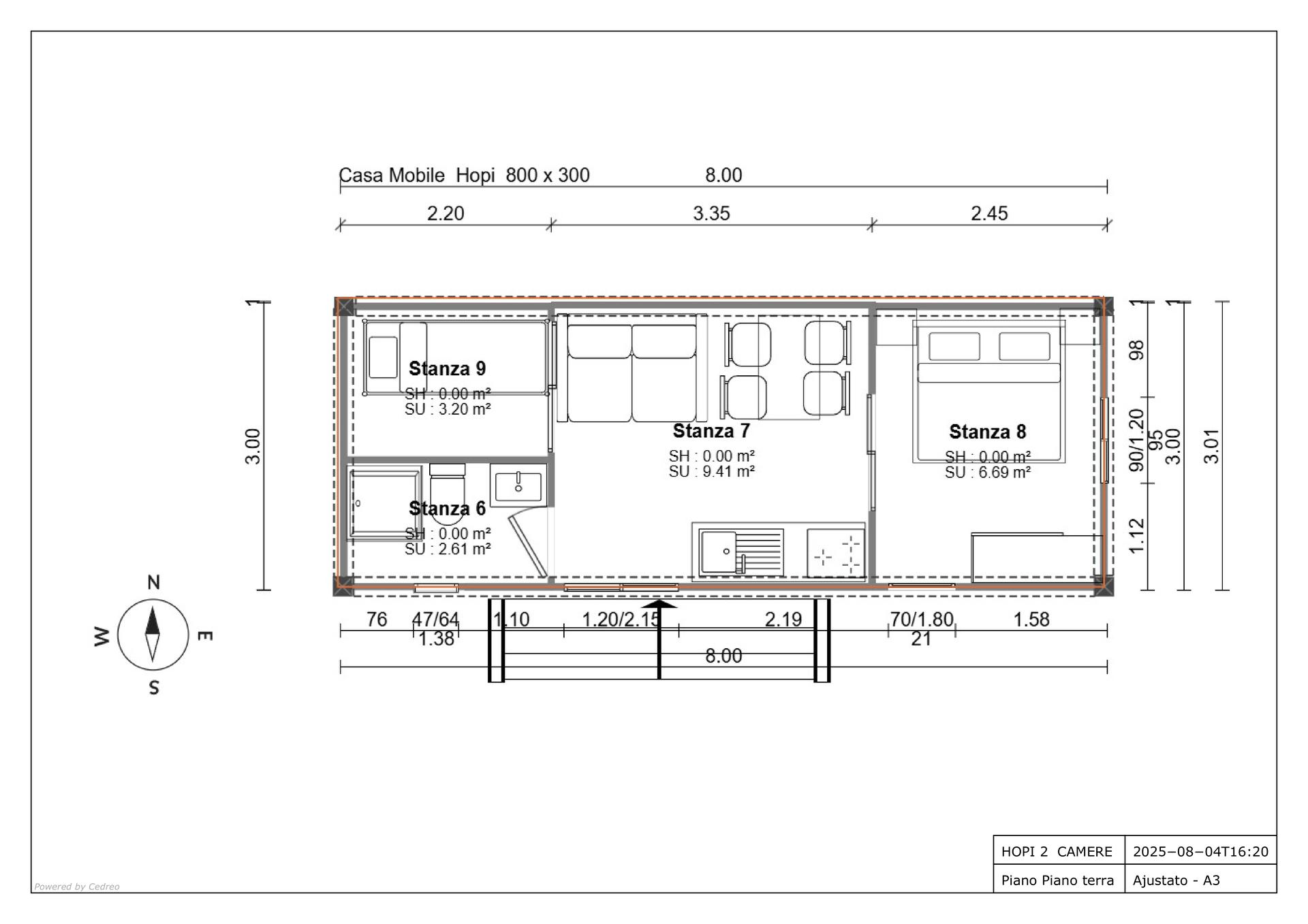
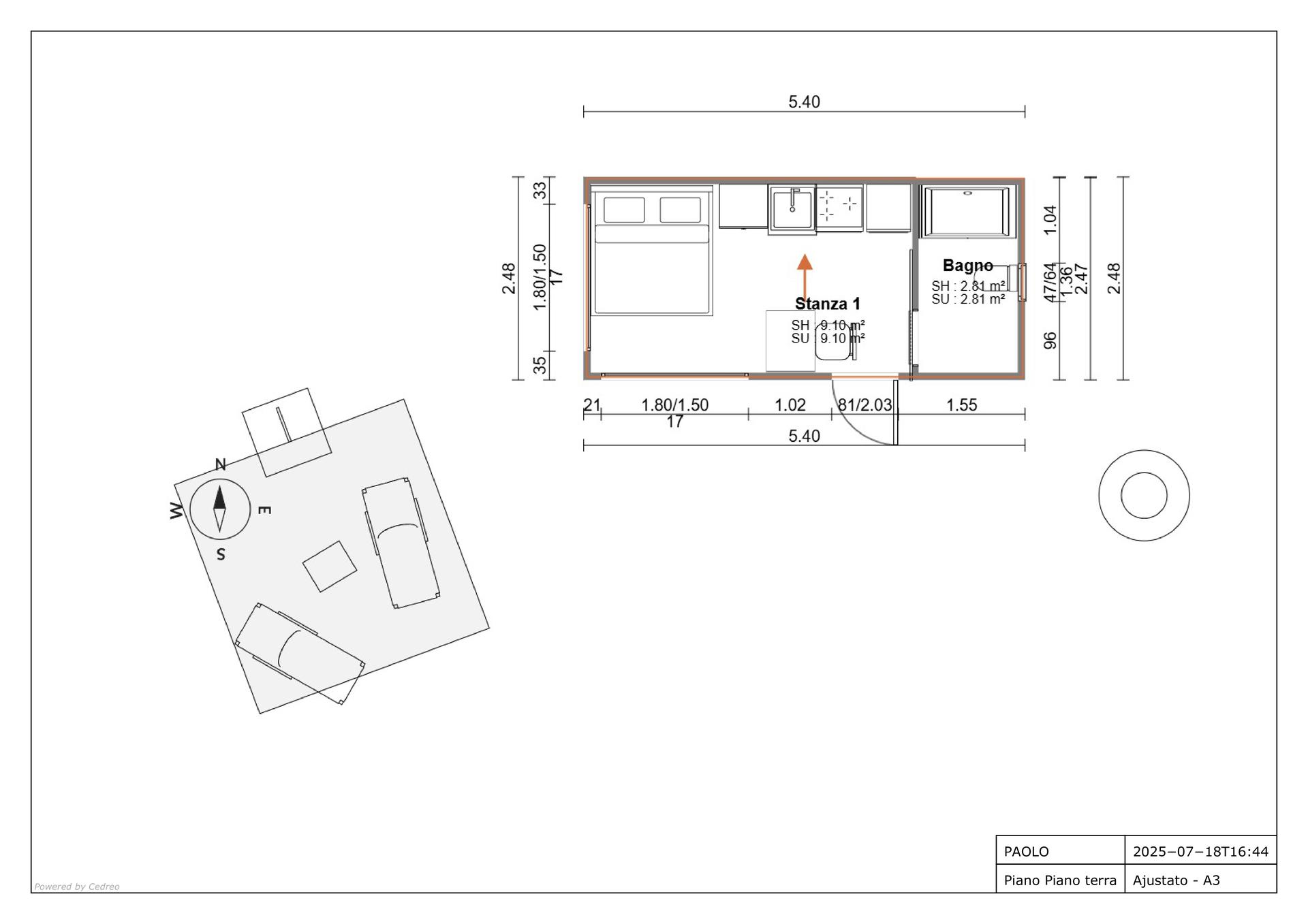
CREA LA TUA PLANIMETRIA PERSONALIZZATA

TRASPORTO GATAWAY GIA' MONTATO OPPURE MONTAGGIO IN LOCO PER AREE DIFFICILI DA RAGGIUNGERE

SEMPRE PRESENTI PER OFFRIRTI IL MASSIMO DELL' ESPERIENZA
Hai un idea per la tua casa mobile?
Vuoi ampliare l'offerta per la tua attività ricettiva?
Vuoi differenziarti nel mercato turistico?
Le Gataway sono la soluzione su misura per te.
Realizziamola insieme, richiedi subito la tua consulenza gratuita.



SCOPRI I NOSTRI MODELLI STANDARD

Novità 2026!
La casa mobile dedicata alla famiglia.
Bella...bellissima da vivere e dodata di tutti i confort. Linea moderna e pulita, dedicata a chi piace l'essenziale.
Disponibile in due piantine standard con 1 o 2 camere da letto.
A partire da € 950,00 a mq






Novità 2026!
Ispirata alla vita in Natura del filosofo Henry David Thoureau, sulle sponde del lago Walden nel Michigan, Walden è la mini home autentica e pura dedicata a chi vuole vivere realmente l'avventura.
Automa nelle utenze, dotata di pannelli solari, bagno chimico o compost toilet.
Disponibile in verione omologata o non, a seconda delle tue necessità.
A partire da € 1000,00 a mq



CARATTERISTICHE TECNICHE

Strutture antisismiche montate su basamento in cemento o su telaio metallico
sagomato e verniciato con piedini regolabili.

Realizzate con pareti isolate tamburate con spessori variabili da mm 65
a mm 120.
Diverse possibilità di finitura interna ed esterna.

Gli isolamenti possono essere in lana minerale (soluzione standard: mm 40,
possibilità di variazioni in funzione delle esigenze dell'installazione). Possibili varianti
sono: canapa e fibra di legno.

Il tetto ha una struttura con travi in legno massello, portante, isolato e finito con lamiera stampata per garantire il massimo della resistenza e dell'isolamento, e l'aggancio di pannelli fotovoltaici.

La copertura del tetto può variare tra:
lamiera grecata preverniciata o isolata.
A richiesta può essere modificata con altri materiali.

Le finiture esterne sono in legno poer intergarsi al meglio nel contesto naturale. A disposizione anche tavolo e 2 sedie da esterno.

Il pavimento è rigorosamente in legno come il rivestimento interno per vivere un esperienza calda e naturale.

Gli infissi sono in legno, isolati con ampi vetri doppi, bassi emissivi e possono essere richiesti anche in pvc.

Arredamento minimal, essenziale totalmente in materiali naturali. Dotato dell' essenziale per cucinare e vivere in autonomia la tua avventura in natura.

SCARICA LE SCHEDE TECNICHE
Inserisci la mail e leggi subito le schede tecniche dei materiali

HAI GIA' IL TUO PROGETTO?
VUOI LA TUA ECHOPOD PERSONALIZZATA?
Richiedi subito la tua consulenza e troviamo insieme la soluzione giusta per te!
GUARDA ALCUNE DELLE NOSTRE
INSTALLAZIONI SU RICHIESTA

Case mobili in legno, finitura intonaco civile, non omologate, ideate e create per struttura ricettiva.

Casa mobile con terrazzo, realizzata su misura per il cliente, utilizzo privato.

Semplice e lineare con terrazzo coperto il modello Pietra è stato realizzato su misura in più unità, per una struttura ricettiva.

COSA ASPETTI?
REALIZZA ORA LA TUA CASA MOBILE
Richiedi subito la tua consulenza e troviamo insieme la soluzione giusta per te!


Da oltre 40 anni supportiamo privati, aziende e famiglie a realizzare la propria idea.
Lo facciamo non solo realizzando i prodotti ma assicurandoci che siano conformi ai tuoi ideali ed ai tuoi valori.
Natura, semplicità e sostenibilità, sia nei costi che ambientale sono i valori su cui si fondano tutte le nostre realizzazioni.

Costi di costruzione certi grazie al preventivo bloccato.
Risparmio energetico grazie alla performante tenuta termica del legno e degli isolanti naturali, per una casa efficente e sana.


Tempi ridotti rispetto all'edilizia tradizionale.
Tempi certi grazie alla produzione off-site dei principali elementi costruttivi e velocità di consegna grazie alla forte esperienza di Clemente sul mercato delle costruzioni prefabbricate.
Scegliamo i migliori partner finanziari per i nostri clienti.
Investiamo con nuove soluzioni finanziarie nelle aziende turistiche che sposano la nostra visione di un turismo più sostenibile e accessibile.
Disponibilità di partnership per costruzioni a reddito e "noleggio operativo" per "camping ed aziende agrituristiche".


Offriamo soluzioni "al grezzo" per chi dispone della parte tecnica internamente.
"Chiavi in mano" per chi vuole il prodotto finito pronto per l'utilizzo, comprensivo anche degli arredi.
Formula "Exclusive" per chi non vuole nemmeno avere il pensiero della parte burocratica delegando al nostro ufficio tecnico, la progettazione, le richieste dei permessi, apertura e chiusura dei lavori ed eventuali aggiornamenti in corso d'opera.

Prenota subito la tua consulenza gratuita, senza impegno ti aiutiamo a trovare la soluzione migliore per realizzare il tuo progetto.



Meraviglioso clima collaborativo, ottima capacità di problem solving durante la fase progettuale e di realizzazione.
Casa costruita con materiali di altissima qualità, in tempi rapidi e senza intoppi.
Sono molto soddisfatta!

Ottima esperienza d'acquisto. Ricomprerei ancora mille volte dalla Clemente.
Ottima qualità dei prodotti, ottimo servizio, complimenti a Delia e Mara per l'accoglienza e l'assistenza.
Grazie a Fulvio per i consigli sulla manutenzione.
Soddisfatissimo del bungalow, ne è valsa l'attesa.


Accolto in una piacevole atmosfera familiare che mi ha fatto subito sentire a mio agio, seguito attentamente nella personalizzazione del pre-ingresso con esperienza, ho notato una particolare cura per i dettagli, velocità e cura nel montaggio.
Prodotto di qualità, semplice e ben fatto!
Esperienza d'acquisto consigliata!



IL TUO PROGETTO IN 3 SEMPLICI PASSAGGI

Dubbi, incertezze, voglia di capire meglio come funziona?
Paolo è lieto di rispondere alle tue domande, sciogliere dubbi ed incertezze, e analizzare a fondo le tue esigenze per poter realizzare un preventivo reale e definitivo, offrendoti tutte le informazioni utili alla realizzazione del tuo sogno.


Vuoi vedere il tuo progetto in anteprima?
Delia e Mara sono felici di rendere la tua idea una realtà, attraverso la realizzazione grafica di interni ed esterni in 3d e costruendo il preventivo più adatto a te.


Costruire è da oltre 40 anni la nostra specialità!
Fulvio ed il team Clemente hanno il compito di rendere una solida realtà il tuo sogno personale o professionale.
Un team esperto e disponibile in grado di soddisfare le tue rigorose esigenze.


DAI VITA AL TUO SOGNO ORA, CLICCA IL BOTTONE QUI SOTTO E PRENOTA SUBITO LA TUA CONSULENZA GRATUITA.
Senza impegno ti aiutiamo a trovare la soluzione migliore per le tue esigenze

Il tuo nuovo progetto.
La tua nuova vita.

CI TROVI IN:
via Mario Clemente 10/14
Borgofranco d'Ivrea (TO)
0125/752433
335/7184625
2025 @All right reserved Clemente Antonella